Wohlfühlambiente
und Komfort
Spannende Architektur gepaart mit modernem Wohnkomfort – neun attraktive Neubau-Wohnungen warten auf Sie!
Die zeitgemäßen Wohnungen sind durch den Umbau einer alten Scheune und der umfassenden Renovierung eines Vorderhauses entstanden. Ein Wohnensemble welches sich aus dem Umfeld hervorhebt.
Durch den Umbau des Vorderhauses und den Neubau des Apartmenthauses entstand die Seniorenresidenz Hungen. Ein architektonisches Highlight beim Umbau der Scheune ist zum Beispiel der Erhalt der alten Holzstruktur im Außenbereich, so dass ein Domizil im modernen Landhausstil entstanden ist.
Zwei der Wohnungen sind als Maisonettewohnungen über zwei Etagen konzipiert.
Die Neubau-Apartments sind vorwiegend altersgerecht geplant mit barrierefreien Zugängen zu Schlafzimmern und Bädern inklusive der notwendigen Bewegungsfreiheit, Sie erreichen Ihre Wohnung im Neubau selbstverständlich mit einem Aufzug.
Das Objekt wurde Anfang 2023 fertig gestellt.
Attraktive Grundrisse, helle, freundliche Räume, bodentiefe Fenster – einziehen und wohlfühlen! Alle Zimmer sind mit einer Fußbodenheizung mit einem separaten Raumthermostat ausgestattet.
Der Gedanke der barrierearmen Konzeption für die Wohnungen wurde auch konsequent im Badezimmer umgesetzt. Bodengleiche Duschen, eine moderne Badausstattung und Handtuchheizkörper runden das Wohlfühl-Ambiente in Ihrer Wohnung ab, ein Notruf in den Bädern gibt Ihnen die nötige Sicherheit.
Lassen Sie erholt den Tag ausklingen und genießen Sie den lauen Sommerabend auf Ihrem Balkon oder Ihrer Terrasse. Sie ziehen gesellige Unterhaltung vor? Kein Problem im Garten, im Hofbereich und im Haus selbst sind Gemeinschaftsflächen zum anregenden Austausch und netten Miteinander entstanden.
Die Seniorenresidenz Hungen bietet Ihnen einen Ort mit Menschen und Inspirationen – tauchen Sie ein in den nächsten Lebensabschnitt, kommen Sie mit auf einen spannenden Weg!
„Hinterhaus“
Wohnen in Nostalgie und Moderne
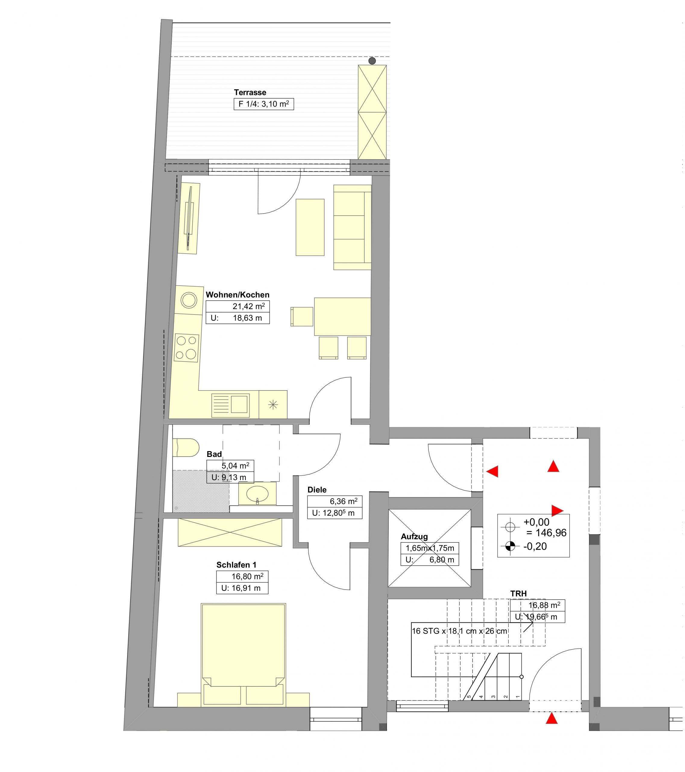
Wohnung 1
– VERMIETET –
Erdgeschoss
2-ZKB
Wohnfläche ca. 54 m²
· Balkon zur Gartenseite
· Offener Wohnbereich
Wohnung 2
– VERMIETET –
Erdgeschoss
3-ZKB
Wohnfläche ca. 71,00 m²
· Balkon zur Gartenseite
· Abstellraum
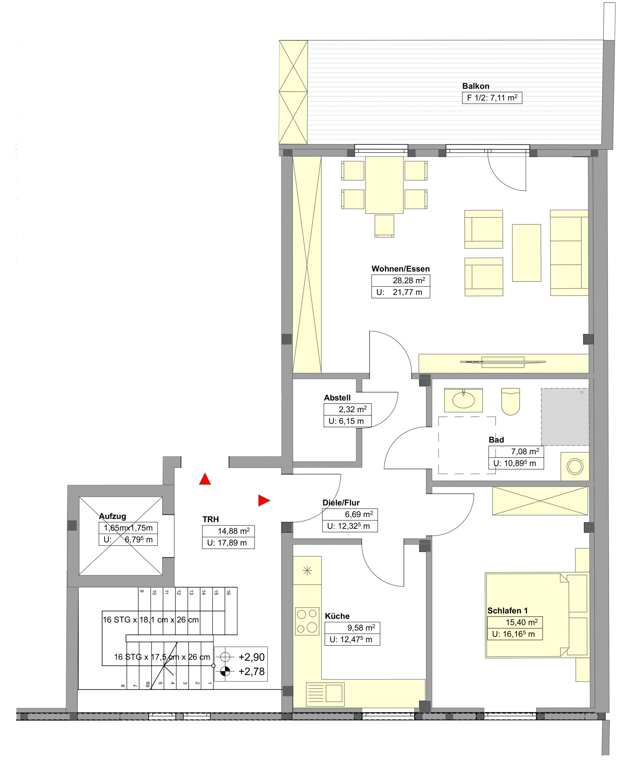
Wohnung 3
FREI AB 01. September 2024
1. Obergeschoss
3-ZKB
Wohnfläche ca. 95,00 m²
· Balkon zur Gartenseite und Terrasse
zum Innenhof
· Großes Wohnzimmer
· Abstellraum
· Hochwertige Ausstattung
Wohnung 4
– VERMIETET –
1. Obergeschoss
2-ZKB
Wohnfläche ca. 73,00 m²
· Balkon zur Gartenseite
· Offener Wohnbereich
· Abstellraum
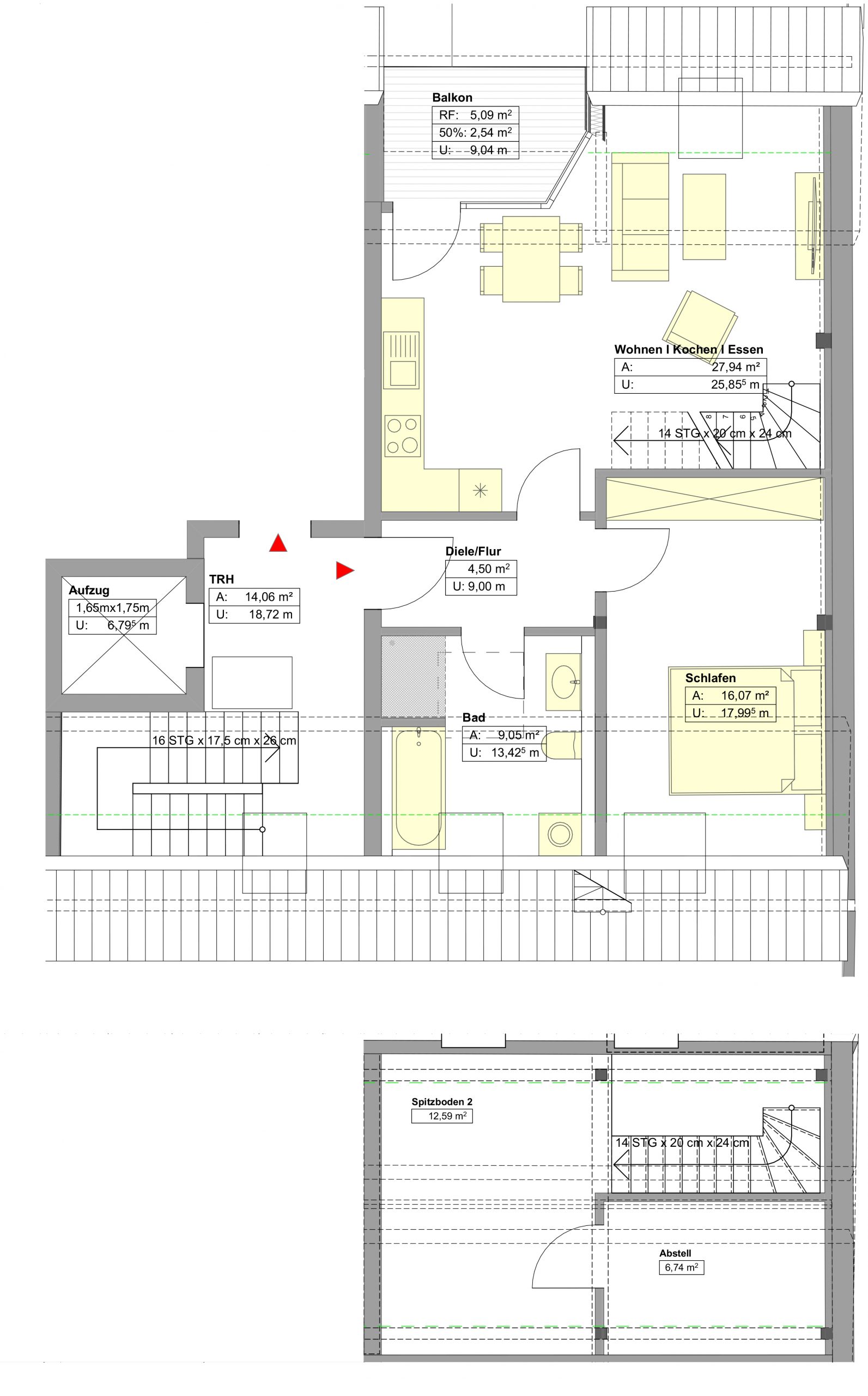
Wohnung 5
– VERMIETET –
Dachgeschoss
3-ZKB
Wohnfläche ca. 111,00 m²
· Balkon zur Gartenseite
· Offener Wohnbereich
· Inklusive Wohnraum
im Spitzboden mit ca. 32,40 m²
und weiteren Abstellraum
Sind Sie an einer
Wohnung interessiert?
„Haupthaus“
Aufwendig renovierte Wohnungen
zum Wohlfühlen
Wohnung 7
– VERMIETET –
Erdgeschoss
2-ZKB
Wohnfläche ca. 74,00 m²
· Terrasse zur Hofseite
· Separater Keller
Wohnung 8
– VERMIETET –
1. Obergeschoss
3-ZKB
Wohnfläche ca. 71,00 m²
· Balkon zur Hofseite
· Offener Wohnbereich
· Separater Keller
Fragen & Informationen
Sie möchten mehr erfahren?
Vereinbaren Sie jetzt einen persönlichen Beratungstermin. Bitte füllen Sie dazu das Kontaktformular aus und senden Sie uns Ihre Nachricht. Wir melden uns schnellstmöglich
bei Ihnen.








